大阪北野ビル
印刷
物件概要
| 住所 | 大阪府大阪市北区野崎町6-7 | 総階数 | 10階/地下1階 |
|---|---|---|---|
| 最寄駅 |
大阪メトロ谷町線南森町駅 徒歩5分 大阪メトロ谷町線東梅田駅 徒歩6分 JR大阪環状線天満駅 徒歩7分 |
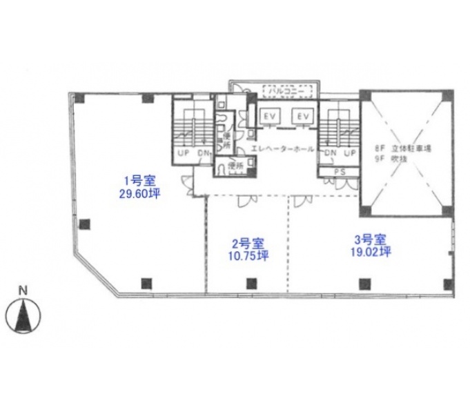
延床面積/基準階面積 | 1000.00坪 / 89.00坪 |
| 建物構造 | 鉄骨鉄筋コンクリート造 | ||
| 竣工年月 | 1986年11月 | 備考 | - |
| リニューアル | - | ||
基準階面積は共用部面積を含む場合がございます。
物件設備・条件
| エレベーター | あり 総台数 2基 |
トイレ | 男女別 |
|---|---|---|---|
| 空調 | 個別空調 24時間使用可 | 正面玄関 開放時間 |
- |
| 天井高 | 2500mm | 駐車場 | 駐車場あり 総台数 24台 |
| フロア | - | 駐輪場 | - |
| セキュリティー | 機械警備 | 貸会議室 | - |
| BCP対応 | 新耐震基準適合 | リフレッシュルーム | なし |
| 立地 | 大通り沿い | 店舗 | - |
| ビル規模 | 中型ビル (貸床50坪〜100坪) |
建物種別 | オフィスビル |

- 総合評価
-




3.5
評価の見方
- 立地
- 駅からビルまでの利便性やコンビニや郵便局などの周辺環境で評価がついています。
- 共用
- ビルの共⽤部(エントランス、外壁などのリニューアル、セキュリー他)共⽤施設の充実度で評価がついています。
- 専有
- 貸室内の設備(天井⾼・OAフロア・個別空調など)で評価がついています。
- BCP対応
- 新耐震基準や地震時強い免震・制震構造・停電時に必要な⾮常⽤電源対応などで評価がついています。
- ステージ君
- オフィステージ コンシェルジュ ステージ君のズバリの評価になります。

大阪北野ビルは、国道1号線から北に入った北区野崎町に建つ地上10階建てのオフィスビルです。1986年竣工で新耐震基準を満たしており、24時間の機械式セキュリティシステムを導入しているので防災・防犯面も安心です。大阪メトロ谷町線の「南森町駅」と「東梅田駅」の間に位置し、どちらの駅からも徒歩5・6分の立地。その他にもJR大阪環状線「天満駅」も徒歩圏内で、通勤や営業回りにも便利です。ビルから西へ向かえば曽根崎エリア、東に向かえば天神橋筋商店街と、賑やかで飲食店街が立ち並ぶ2つのエリアに囲まれており、ランチや就業後の懇親会など、お店選びが楽しみになりそうな環境です。各室内は個別空調方式採用で、いつでも快適な温度調節が自由にでき、窓が多いので明るく開放的な雰囲気で業務に取り組むことができます。ビルにはタワー式の駐車場が完備。ビル西側前面は27m幅の道路が通り、車での移動も大変しやすく、社有車をお持ちの企業様でも安心してご入居いただけます。
- 立地
-




- 共用
-




- 専有
-




- BCP対応
-




- ステージ君
-





非公開とは?
賃料が「非公開」の物件は、オーナー様のご希望で賃料が非公開となっております。
賃料の目安についてはお気軽にお問い合わせください。
- 南森町・天六・天満の中型ビルの平均坪単価
- 8,761円





