山口興産堺筋ビル(旧)金商ビル
印刷
物件概要
| 住所 | 大阪府大阪市中央区久太郎町2-2-6 | 総階数 | 9階/地下1階 |
|---|---|---|---|
| 最寄駅 |
大阪メトロ堺筋線堺筋本町駅 徒歩2分 大阪メトロ中央線堺筋本町駅 徒歩2分 |
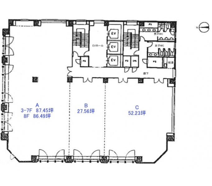
延床面積/基準階面積 | 2186.16坪 / 159.62坪 |
| 建物構造 | 鉄骨鉄筋コンクリート造 | ||
| 竣工年月 | 1994年12月 | 備考 | - |
| リニューアル | - | ||
基準階面積は共用部面積を含む場合がございます。
物件設備・条件
| エレベーター | あり 総台数 3基 |
トイレ | 男女別 ウォシュレットあり |
|---|---|---|---|
| 空調 | 個別空調 24時間使用可 | 正面玄関 開放時間 |
- |
| 天井高 | - | 駐車場 | 駐車場あり |
| フロア | - | 駐輪場 | - |
| セキュリティー | 機械警備 | 貸会議室 | - |
| BCP対応 | 新耐震基準適合 | リフレッシュルーム | なし |
| 立地 | 駅3分以内 | 店舗 | - |
| ビル規模 | 大型ビル (貸床100坪〜200坪) |
建物種別 | オフィスビル |

- 総合評価
-




3.5
評価の見方
- 立地
- 駅からビルまでの利便性やコンビニや郵便局などの周辺環境で評価がついています。
- 共用
- ビルの共⽤部(エントランス、外壁などのリニューアル、セキュリー他)共⽤施設の充実度で評価がついています。
- 専有
- 貸室内の設備(天井⾼・OAフロア・個別空調など)で評価がついています。
- BCP対応
- 新耐震基準や地震時強い免震・制震構造・停電時に必要な⾮常⽤電源対応などで評価がついています。
- ステージ君
- オフィステージ コンシェルジュ ステージ君のズバリの評価になります。

山口興産堺筋ビルは大阪市中央区久太郎町、堺筋の角地に建つ1994年竣工、新耐震基準のオフィスビルです。ライトブラウンのどっしりとした外観により視認性は十分です。敷地内には池があり、鯉が飼育されていますので、ビルに訪れる人々を癒やしてくれます。壁面には大理石、床面は灰色のタイルが敷かれ高級感のある、格調高い印象です。暖色の明るい間接照明が、来訪者をエレベーターまで導いてくれます。共用部はブラウンを基調としており、モダンな雰囲気が醸し出されています。ビル内は機械警備が採用されセキュリティは十分。ウォシュレット付きの男女別トイレ完備により女性の方にも安心です。部屋内にはOAフロアが採用され、また回線は光ファイバーなので、パソコン等を多く使われる企業様にも適しています。天井高は2,600mmで、広々とした印象。自然採光で明るいオフィスです。最寄り駅は2路線が利用可能な大阪メトロ「堺筋本町駅」。徒歩2分の立地で日々の通勤もストレスなく行うことが出来ます。駅近で大きな物件で働きたい方必見の物件です。
- 立地
-




- 共用
-




- 専有
-




- BCP対応
-




- ステージ君
-





非公開とは?
賃料が「非公開」の物件は、オーナー様のご希望で賃料が非公開となっております。
賃料の目安についてはお気軽にお問い合わせください。
- 本町の大型ビルの平均坪単価
- 9,684円





