大阪国際ビルディング
印刷
物件概要
| 住所 | 大阪府大阪市中央区安土町2-3-13 | 総階数 | 32階/地下3階 |
|---|---|---|---|
| 最寄駅 |
大阪メトロ堺筋線堺筋本町駅 徒歩2分 大阪メトロ中央線堺筋本町駅 徒歩2分 大阪メトロ御堂筋線本町駅 徒歩5分 |
延床面積/基準階面積 | 19627.99坪 / - |
| 建物構造 | 鉄骨造 | ||
| 竣工年月 | 1973年2月 | 備考 | - |
| リニューアル | 2015年6月 一部共用部リニューアル済、2016年3月エントランス改修済み予定 | ||
基準階面積は共用部面積を含む場合がございます。
物件設備・条件
| エレベーター | あり 総台数 14基 うち荷物用EV 2基 |
トイレ | 男女別 ウォシュレットあり |
|---|---|---|---|
| 空調 | セントラル空調 補助空調あり 平 日 8 : 30 〜 18 : 00 土 曜 8 : 30 〜 13 : 00 日・祝 - : - 〜 - : - |
正面玄関 開放時間 |
平 日 7 : 00 〜 23 : 30 土 曜 7 : 00 〜 23 : 30 日・祝 7 : 00 〜 23 : 00 |
| 天井高 | 2550mm | 駐車場 | 駐車場あり 総台数 119台 |
| フロア | OAフロアあり 50mm | 駐輪場 | 駐輪場なし |
| セキュリティー | 機械警備 | 貸会議室 | あり |
| BCP対応 | 新耐震基準適合 | リフレッシュルーム | なし |
| 立地 | 駅3分以内 大通り沿い |
店舗 | - |
| ビル規模 | 大規模ビル (延床3,000坪以上or貸床200坪以上) |
建物種別 | オフィスビル |

- 総合評価
-




4
評価の見方
- 立地
- 駅からビルまでの利便性やコンビニや郵便局などの周辺環境で評価がついています。
- 共用
- ビルの共⽤部(エントランス、外壁などのリニューアル、セキュリー他)共⽤施設の充実度で評価がついています。
- 専有
- 貸室内の設備(天井⾼・OAフロア・個別空調など)で評価がついています。
- BCP対応
- 新耐震基準や地震時強い免震・制震構造・停電時に必要な⾮常⽤電源対応などで評価がついています。
- ステージ君
- オフィステージ コンシェルジュ ステージ君のズバリの評価になります。

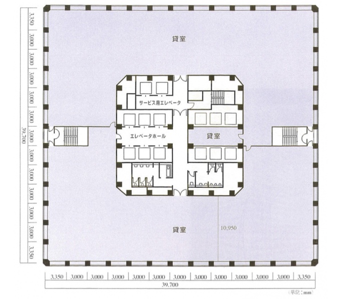
大阪国際ビルディングは、1973年に竣工した高さ125mの高層ビルで、竣工当時は大阪で最も高いビルとして知られるようになりました。2016年には大規模なリニューアル工事が行われ、全く築年数を感じさせません。丸々1ブロックを占める白い外壁と整然と並ぶ窓が印象的な外観で、知名度・視認性共に文句なし。大阪屈指のビジネスエリアである「本町」を代表する建物として、竣工当時から変わらずランドマークであり続けています。本町通りに面した安土町2丁目に建つ複合ビルで、低層階には大型書店などの物販店やコンビニ、飲食店が入居しており、テナント様のみならず、周辺で働く人たちにも親しまれています。大阪メトロ堺筋線「堺筋本町駅」から徒歩2分、御堂筋線など3路線が乗り入れる「本町駅」からも徒歩5分と、通勤にも営業にも大変便利な立地です。さらにハイルーフも駐車可能な平面式駐車場も完備、時間貸しもありますので営業車をお持ちの企業様や車での来客がある企業様でも安心です。基準フロアは約400坪の無柱空間。エレベーターやトイレなどの共用部を中心部分に集めたセンターコア構造で、どのように分割した場合でも必ず窓が取れ、広く明るい環境を構築できるように設計されています。また、ビルの共用施設として館内食堂や貸し会議室などもあり、快適なオフィス造りをサポートする配慮が随所に見られます。通勤、営業活動、新規人材確保など、交通アクセスが良いことはオフィスとして非常に重要なポイントとなります。立地改善や企業イメージアップを目指される企業様には特におすすめです。
- 立地
-




- 共用
-




- 専有
-




- BCP対応
-




- ステージ君
-





室内はOAフロア対応で、煩雑になりがちなOA機器の配線や電話線を床下に収納することが可能です。天井高は、2,550mmです。各階共用部には、ウォシュレット付き男女別トイレや給湯室を完備。空調は、セントラル空調と個別空調を併用しています。正面玄関の開放時間は全日7時00分~23時30分で、時間外はセキュリティーカードにより入退館が可能です。駐車場は、専用の駐車場が完備されています。ビルは、常駐の管理人による有人警備と機械警備によって管理されており、セキュリティー面も万全です。
非公開とは?
賃料が「非公開」の物件は、オーナー様のご希望で賃料が非公開となっております。
賃料の目安についてはお気軽にお問い合わせください。
- 本町の大規模ビルの平均坪単価
- 13,209円






大阪国際ビルディングは、1973年2月に竣工した複合ビルです。大阪市中央区安土町2-3-13にある鉄骨造、一部鉄骨鉄筋コンクリート造地上32階、地下3階建の複合ビルで、地下1階~2階、31階は店舗、16階は各種クリニック、3階~15階、17階~30階、32階はオフィスの複合ビルとなっています。最寄駅は大阪メトロ堺筋線「堺筋本町駅」で、徒歩2分の距離にあります。ビルの外観は、白い外壁が特徴的です。エントランスの内装は、黒と白を基調としています。ビル内には、低層用エレベーターが6基、高層用エレベーターが6基基完備され、混雑しがちな朝の通勤時にもスムーズに利用できます。