BB第一ビル
印刷
物件写真
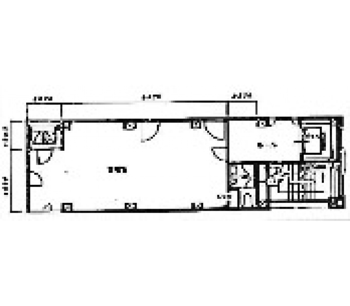
区画図(基準階)
物件概要
| 住所 | 大阪府大阪市中央区淡路町4-7-1 | 総階数 | 7階 |
|---|---|---|---|
| 最寄駅 |
大阪メトロ四つ橋線本町駅 徒歩3分 大阪メトロ四つ橋線肥後橋駅 徒歩3分 大阪メトロ御堂筋線本町駅 徒歩5分 |
延床面積/基準階面積 | 197.87坪 / 20.00坪 |
| 建物構造 | 鉄骨造 | ||
| 竣工年月 | 1988年10月 | 備考 | - |
| リニューアル | - | ||
基準階面積は共用部面積を含む場合がございます。
物件設備・条件
| エレベーター | あり 総台数 1基 |
トイレ | 混合 ウォシュレットあり |
|---|---|---|---|
| 空調 | 個別空調 24時間使用可 | 正面玄関 開放時間 |
- |
| 天井高 | 2500mm | 駐車場 | 駐車場なし |
| フロア | OAフロアなし 1フロア1テナント |
駐輪場 | - |
| セキュリティー | 機械警備 | 貸会議室 | - |
| BCP対応 | 新耐震基準適合 | リフレッシュルーム | なし |
| 立地 | 駅3分以内 | 店舗 | - |
| ビル規模 | 小型ビル (貸床〜50坪) |
建物種別 | オフィスビル |

- 総合評価
-




3.5
評価の見方
- 立地
- 駅からビルまでの利便性やコンビニや郵便局などの周辺環境で評価がついています。
- 共用
- ビルの共⽤部(エントランス、外壁などのリニューアル、セキュリー他)共⽤施設の充実度で評価がついています。
- 専有
- 貸室内の設備(天井⾼・OAフロア・個別空調など)で評価がついています。
- BCP対応
- 新耐震基準や地震時強い免震・制震構造・停電時に必要な⾮常⽤電源対応などで評価がついています。
- ステージ君
- オフィステージ コンシェルジュ ステージ君のズバリの評価になります。

BB第一ビルは、タイル貼りとなっているグレーの外壁と大きく取られた窓が目を引くオフィスビルです。エントランスの内装は、白を基調とした清潔感のある雰囲気。来社されたお客様にも好印象です。1988年に建てられたビルで、地震対策もバッチリ!「本町駅」、「肥後橋駅」、「淀屋橋駅」からは、歩いて7分の距離にあります。3つの路線が利用できるため、毎日の通勤や仕事で外出するときに便利です。それぞれの部屋には光ファイバーが引き込まれているので、インターネットが快適に利用できます。トイレは男女別で、給湯室もしっかり完備されています。空調はそれぞれの部屋で設定できる個別空調。体調や気温に合わせて細かく調整できるため、仕事中は常に快適です。セキュリティーもバッチリなので、いつでも安心して仕事ができます。
評価詳細を表示
- 立地
-




- 共用
-




- 専有
-




- BCP対応
-




- ステージ君
-





非公開とは?
賃料が「非公開」の物件は、オーナー様のご希望で賃料が非公開となっております。
賃料の目安についてはお気軽にお問い合わせください。
- 本町の小型ビルの平均坪単価
- 8,699円






BB第一ビルは、1988年10月に竣工したオフィスビルです。大阪市中央区淡路町4-7-1にある鉄骨造地上7階建のオフィスビルです。大阪メトロ四つ橋線「肥後橋駅」、御堂筋線「淀屋橋駅」、御堂筋線・中央線・四つ橋線「本町駅」からそれぞれ徒歩7分と、3路線3駅からアクセスできる点が特徴です。新耐震基準を満たしているため、災害時にも一定の安全性を確保しています。天井高は2,500mmで室内に圧迫感はなく、光ファイバーも引込済。給湯室は、オフィス毎に設置されています。男女別トイレや個別空調も完備されており、快適な職場環境を実現しています。ビルは24時間対応の機械警備によって管理されており、セキュリティー面も万全です。