大阪山甚ビル
印刷
物件概要
| 住所 | 大阪府大阪市中央区本町1-5-6 | 総階数 | 9階/地下2階 |
|---|---|---|---|
| 最寄駅 |
大阪メトロ堺筋線堺筋本町駅 徒歩2分 大阪メトロ中央線本町駅 徒歩2分 |
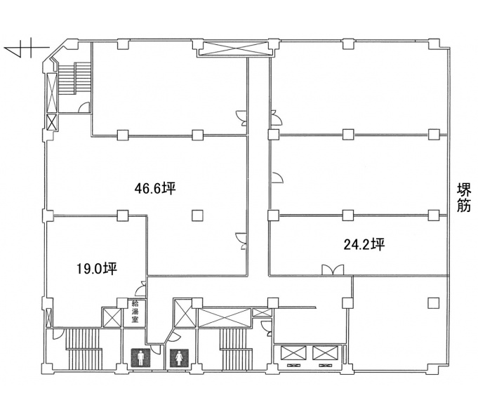
延床面積/基準階面積 | 2798.00坪 / 200.00坪 |
| 建物構造 | 鉄骨鉄筋コンクリート造 | ||
| 竣工年月 | 1965年11月 | 備考 | - |
| リニューアル | - | ||
基準階面積は共用部面積を含む場合がございます。
物件設備・条件
| エレベーター | あり 総台数 3基 |
トイレ | 男女別 ウォシュレットあり |
|---|---|---|---|
| 空調 | 個別空調 24時間使用可 | 正面玄関 開放時間 |
平 日 7 : 00 〜 23 : 00 土 曜 8 : 00 〜 23 : 00 日・祝 8 : 00 〜 19 : 00 |
| 天井高 | - | 駐車場 | 駐車場あり 総台数 24台 |
| フロア | OAフロアあり | 駐輪場 | 駐輪場あり |
| セキュリティー | 機械警備 | 貸会議室 | - |
| BCP対応 | - | リフレッシュルーム | なし |
| 立地 | 駅3分以内 大通り沿い |
店舗 | - |
| ビル規模 | 大規模ビル (延床3,000坪以上or貸床200坪以上) |
建物種別 | オフィスビル |

- 総合評価
-




3
評価の見方
- 立地
- 駅からビルまでの利便性やコンビニや郵便局などの周辺環境で評価がついています。
- 共用
- ビルの共⽤部(エントランス、外壁などのリニューアル、セキュリー他)共⽤施設の充実度で評価がついています。
- 専有
- 貸室内の設備(天井⾼・OAフロア・個別空調など)で評価がついています。
- BCP対応
- 新耐震基準や地震時強い免震・制震構造・停電時に必要な⾮常⽤電源対応などで評価がついています。
- ステージ君
- オフィステージ コンシェルジュ ステージ君のズバリの評価になります。

大阪山甚ビルは、横に広く取られた窓が目を引くオフィスビルです。本町通沿いの角地に建っていることから視認性はバツグン!初めて来社されたお客様でも見つけやすいビルとなっています。「堺筋本町駅」から歩いて2分という駅近な立地も嬉しいポイント。毎日の通勤がラクチンなのはもちろん、仕事で外出するときにもとっても便利です!ビルには2つのエレベーターがあるため、朝の通勤ラッシュでも焦らずに出社できます。オフィスの床はOAフロアになっているので、たくさんの機器を扱う職場でも配線が邪魔にならず自由なオフィスレイアウトが実現できます!空調はそれぞれの部屋で自由に調節できるため、仕事中は常に快適。セキュリティーもバッチリなので、いつでも安心して仕事に取り組めます!
- 立地
-




- 共用
-




- 専有
-




- BCP対応
-




- ステージ君
-





非公開とは?
賃料が「非公開」の物件は、オーナー様のご希望で賃料が非公開となっております。
賃料の目安についてはお気軽にお問い合わせください。
- 本町の大規模ビルの平均坪単価
- 13,209円






大阪山甚ビルは、1965年11月に竣工したオフィスビルです。大阪市中央区本町1-5-6にある鉄骨鉄筋コンクリート造地上9階、地下2階建のオフィスビルで、大阪メトロ堺筋線「堺筋本町駅」から徒歩2分、大阪メトロ御堂筋線「本町駅」から徒歩7分の距離にあります。ビルの外観は、明るいグレーの外壁が特徴的です。エントランスの内装は、白を基調としています。ビル内にはエレベーターが2基完備され、混雑しがちな朝の通勤時にもスムーズに利用できます。室内はOAフロア対応で、煩雑になりがちなOA機器の配線や電話線を床下に収納することが可能です。各階共用部には、ウォシュレット付き男女別トイレや給湯室を完備。空調は、個別空調です。駐車場は、専用の駐車場が完備されています。ビルは機械警備によって管理されており、セキュリティー面も万全です。