西本町中央ビル(旧)サムティ西本町中央ビル
印刷
物件写真
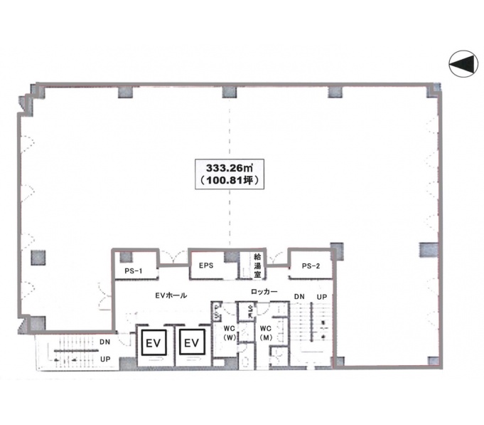
区画図(基準階)
物件概要
| 住所 | 大阪府大阪市西区阿波座1-13-13 | 総階数 | 10階/地下1階 |
|---|---|---|---|
| 最寄駅 |
大阪メトロ四つ橋線本町駅 徒歩4分 大阪メトロ中央線阿波座駅 徒歩5分 大阪メトロ長堀鶴見緑地線西大橋駅 徒歩7分 |
延床面積/基準階面積 | 1304.76坪 / 85.97坪 |
| 建物構造 | 鉄骨鉄筋コンクリート造 | ||
| 竣工年月 | 1989年7月 | 備考 | - |
| リニューアル | - | ||
基準階面積は共用部面積を含む場合がございます。
物件設備・条件
| エレベーター | あり 総台数 2基 |
トイレ | 男女別 ウォシュレットあり |
|---|---|---|---|
| 空調 | 個別空調 24時間使用可 | 正面玄関 開放時間 |
平 日 7 : 30 〜 20 : 00 土 曜 7 : 30 〜 20 : 00 日・祝 - : - 〜 - : - |
| 天井高 | 2600mm | 駐車場 | 駐車場あり 総台数 22台 |
| フロア | OAフロアあり 50mm | 駐輪場 | 駐輪場なし |
| セキュリティー | 機械警備 | 貸会議室 | なし |
| BCP対応 | 新耐震基準適合 | リフレッシュルーム | なし |
| 立地 | 大通り沿い | 店舗 | - |
| ビル規模 | 中型ビル (貸床50坪〜100坪) |
建物種別 | オフィスビル |

- 総合評価
-




3.5
評価の見方
- 立地
- 駅からビルまでの利便性やコンビニや郵便局などの周辺環境で評価がついています。
- 共用
- ビルの共⽤部(エントランス、外壁などのリニューアル、セキュリー他)共⽤施設の充実度で評価がついています。
- 専有
- 貸室内の設備(天井⾼・OAフロア・個別空調など)で評価がついています。
- BCP対応
- 新耐震基準や地震時強い免震・制震構造・停電時に必要な⾮常⽤電源対応などで評価がついています。
- ステージ君
- オフィステージ コンシェルジュ ステージ君のズバリの評価になります。

サムティ西本町中央ビルは、タイル貼りの外壁と横に広く取られた窓が目を引くオフィスビルです。中央大通沿いに建っていることから視認性はバツグン!初めて来社されたお客様でも見つけやすいビルとなっています。1989年に建てられたビルであるため耐震基準はしっかりクリア!万が一地震がきても安心です!歩いて4分の距離には、「本町駅」があります。3つの路線が利用できることから、毎日の通勤はもちろん仕事で外出するときにも便利です!インターネット回線は光ファイバー!高速通信で快適なインターネット環境を実現しています。床はOAフロアになっているので、たくさんの機器を扱う職場でも配線が邪魔になりません。空調はそれぞれの部屋で自由に設定できるため、いつでも快適な環境で仕事に取り組めます!
評価詳細を表示
- 立地
-




- 共用
-




- 専有
-




- BCP対応
-




- ステージ君
-





非公開とは?
賃料が「非公開」の物件は、オーナー様のご希望で賃料が非公開となっております。
賃料の目安についてはお気軽にお問い合わせください。
- 阿波座・西長堀の中型ビルの平均坪単価
- 8,477円






サムティ西本町中央ビルは、1989年7月に竣工したオフィスビルです。大阪市西区阿波座1-13-13にあり、鉄骨鉄筋コンクリート造地上10階、地下1階、塔屋1階建のオフィスビルとなっています。最寄駅である大阪メトロ御堂筋線・中央線・四つ橋線「本町駅」からは徒歩4分の距離に位置しています。ビルの外観は、白と黒を用いた外壁が特徴的です。エントランスの内装は、白を基調としています。エレベーターは2基設置されているため、時間帯に左右されずスムーズに利用できます。新耐震基準に則って設計されていることから、地震などの災害時にも一定の安全性が確保されています。光ファイバーは引込済で、床面はOAフロアに対応。共用部には男女別のトイレが設けられています。空調は個別空調が導入されており、各オフィスで細かな温度設定が可能です。