OWL瓦町ビル
印刷
物件概要
| 住所 | 大阪府大阪市中央区瓦町3-3-16 | 総階数 | 9階/地下1階 |
|---|---|---|---|
| 最寄駅 |
大阪メトロ御堂筋線本町駅 徒歩3分 大阪メトロ堺筋線堺筋本町駅 徒歩5分 大阪メトロ御堂筋線淀屋橋駅 徒歩6分 |
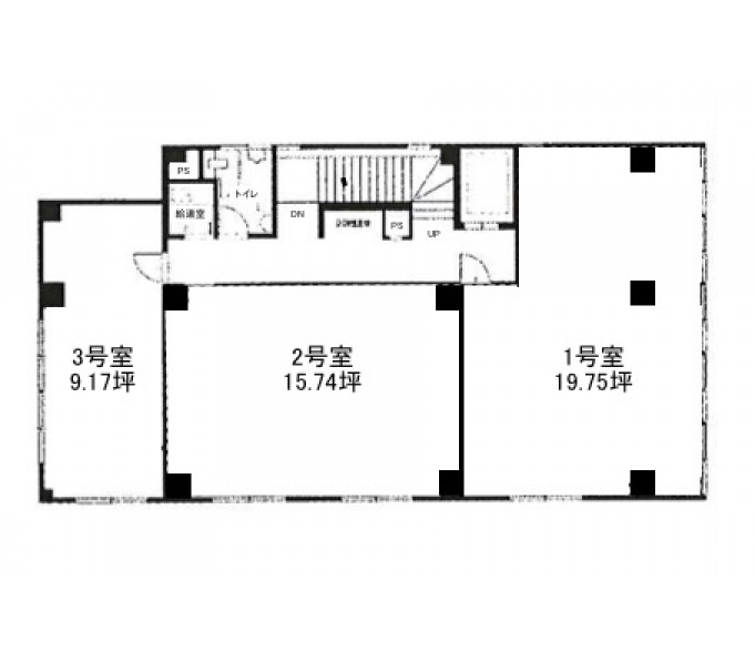
延床面積/基準階面積 | - / 57.41坪 |
| 建物構造 | 鉄筋コンクリート造 | ||
| 竣工年月 | 1970年9月 | 備考 | - |
| リニューアル | - | ||
基準階面積は共用部面積を含む場合がございます。
物件設備・条件
| エレベーター | あり 総台数 1基 |
トイレ | 男女別 ウォシュレットあり |
|---|---|---|---|
| 空調 | 個別空調 24時間使用可 | 正面玄関 開放時間 |
- |
| 天井高 | - | 駐車場 | 駐車場なし |
| フロア | - | 駐輪場 | - |
| セキュリティー | 機械警備 | 貸会議室 | - |
| BCP対応 | - | リフレッシュルーム | なし |
| 立地 | 駅3分以内 | 店舗 | - |
| ビル規模 | 中型ビル (貸床50坪〜100坪) |
建物種別 | オフィスビル |

- 総合評価
-




2.5
評価の見方
- 立地
- 駅からビルまでの利便性やコンビニや郵便局などの周辺環境で評価がついています。
- 共用
- ビルの共⽤部(エントランス、外壁などのリニューアル、セキュリー他)共⽤施設の充実度で評価がついています。
- 専有
- 貸室内の設備(天井⾼・OAフロア・個別空調など)で評価がついています。
- BCP対応
- 新耐震基準や地震時強い免震・制震構造・停電時に必要な⾮常⽤電源対応などで評価がついています。
- ステージ君
- オフィステージ コンシェルジュ ステージ君のズバリの評価になります。

OWL瓦町ビルは、御堂筋と堺筋に挟まれた中央区瓦町3丁目に建つ、地上9階地下1階建てのオフィスビルです。1階テナントには飲食店、2階部分には商業テナントが入居しており、それぞれの看板が目を引き、来客時には目印になるため道案内が容易です。大阪メトロ御堂筋線・中央線・四つ橋線の3路線が乗り入れる「本町駅」1号出入り口から徒歩3分、同堺筋線「堺筋本町駅」からも徒歩5分という立地で、各方面からの通勤や日々の営業活動にも大変便利な環境です。近隣にはコンビニや飲食店も多く、従業員様のランチや買出しに不便はありません。また御堂筋沿いには郵便局、複数の銀行の支店もあり、業務上でも無駄な時間を取られる心配は不要。ワンフロアは約57坪、20坪前後の分割が可能で、様々な規模の会社様に対応します。個別空調と男女別でウォシュレット付きトイレ完備で女性授業員様も安心してお過ごしいただけ、快適なオフィス環境を構築できます。
- 立地
-




- 共用
-




- 専有
-




- BCP対応
-




- ステージ君
-





非公開とは?
賃料が「非公開」の物件は、オーナー様のご希望で賃料が非公開となっております。
賃料の目安についてはお気軽にお問い合わせください。
- 本町の中型ビルの平均坪単価
- 9,084円





