堺筋東野村ビル
印刷
物件概要
| 住所 | 大阪府大阪市中央区備後町1-4-5 | 総階数 | 6階/地下1階 |
|---|---|---|---|
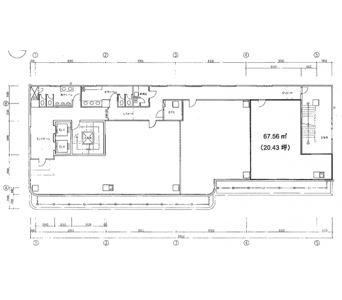
| 最寄駅 | 大阪メトロ堺筋線堺筋本町駅 徒歩3分 | 延床面積/基準階面積 | 1081.12坪 / 107.00坪 |
| 建物構造 | 鉄筋コンクリート造 | ||
| 竣工年月 | 1975年7月 | 備考 | - |
| リニューアル | 2002年10月 リニューアル | ||
基準階面積は共用部面積を含む場合がございます。
物件設備・条件
| エレベーター | あり 総台数 2基 |
トイレ | 男女別 ウォシュレットあり |
|---|---|---|---|
| 空調 | 個別空調 24時間使用可 | 正面玄関 開放時間 |
- |
| 天井高 | 2550mm | 駐車場 | 駐車場なし |
| フロア | OAフロアあり | 駐輪場 | - |
| セキュリティー | 機械警備 | 貸会議室 | - |
| BCP対応 | - | リフレッシュルーム | なし |
| 立地 | 駅3分以内 | 店舗 | - |
| ビル規模 | 大型ビル (貸床100坪〜200坪) |
建物種別 | オフィスビル |

- 総合評価
-




3
評価の見方
- 立地
- 駅からビルまでの利便性やコンビニや郵便局などの周辺環境で評価がついています。
- 共用
- ビルの共⽤部(エントランス、外壁などのリニューアル、セキュリー他)共⽤施設の充実度で評価がついています。
- 専有
- 貸室内の設備(天井⾼・OAフロア・個別空調など)で評価がついています。
- BCP対応
- 新耐震基準や地震時強い免震・制震構造・停電時に必要な⾮常⽤電源対応などで評価がついています。
- ステージ君
- オフィステージ コンシェルジュ ステージ君のズバリの評価になります。

堺筋東野村ビルは大阪市中央区備後町、堺筋を一本東に入った角に建つオフィスビルです。黒色のガラス窓と灰色の石を用いたエントランス部分により、重厚でスタイリッシュな印象を齎しています。共用部は明るい色彩で構成されており、常に明るい雰囲気で業務に臨むことが出来ます。機械警備でセキュリティは十分。ウォシュレット付きの男女別トイレ完備で女性にも嬉しい物件です。天井高は2,550mmなので余裕があります。床面はOAフロアが採用され、自由自在に配線が可能。レイアウト案も出しやすいです。各階に個別空調完備。季節を問わずテナントサイドで温度調節が可能です。最寄り駅は大阪メトロ堺筋線、中央線が利用可能な「堺筋本町駅」。12番出口から北に歩いておよそ3分の立地です。周辺はビジネス街ですので、サラリーマンをターゲットにした飲食店やコンビニエンスストア等が多く営業されているため、ランチや打ち合わせ、会食に至るまで困ることはありません。重厚な見た目の駅近ビル。気になった方は是非一度お問い合わせくださいませ。
- 立地
-




- 共用
-




- 専有
-




- BCP対応
-




- ステージ君
-





非公開とは?
賃料が「非公開」の物件は、オーナー様のご希望で賃料が非公開となっております。
賃料の目安についてはお気軽にお問い合わせください。
- 本町の大型ビルの平均坪単価
- 9,684円





