SD堺筋本町ビル(旧)本町EAST
印刷
物件概要
| 住所 | 大阪府大阪市中央区久太郎町1-9-5 | 総階数 | 10階 |
|---|---|---|---|
| 最寄駅 |
大阪メトロ中央線堺筋本町駅 徒歩1分 大阪メトロ堺筋線堺筋本町駅 徒歩2分 |
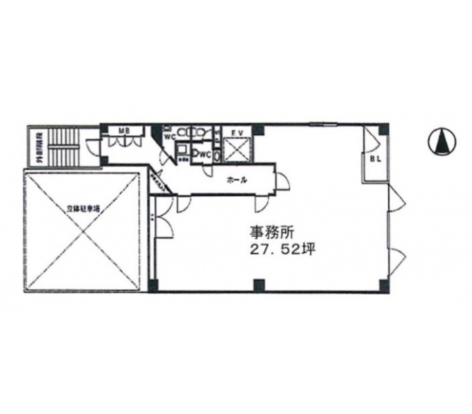
延床面積/基準階面積 | - / 27.68坪 |
| 建物構造 | 鉄骨造 | ||
| 竣工年月 | 1990年8月 | 備考 | - |
| リニューアル | - | ||
基準階面積は共用部面積を含む場合がございます。
物件設備・条件
| エレベーター | あり 総台数 1基 |
トイレ | 男女別 ウォシュレットあり |
|---|---|---|---|
| 空調 | 個別空調 24時間使用可 | 正面玄関 開放時間 |
平 日 6 : 00 〜 23 : 00 土 曜 6 : 00 〜 23 : 00 日・祝 8 : 00 〜 20 : 00 |
| 天井高 | 2380mm | 駐車場 | 駐車場あり |
| フロア | OAフロアなし 1フロア1テナント |
駐輪場 | 駐輪場あり |
| セキュリティー | 機械警備 | 貸会議室 | なし |
| BCP対応 | 新耐震基準適合 | リフレッシュルーム | なし |
| 立地 | 駅3分以内 | 店舗 | - |
| ビル規模 | 小型ビル (貸床〜50坪) |
建物種別 | オフィスビル |

- 総合評価
-




3.5
評価の見方
- 立地
- 駅からビルまでの利便性やコンビニや郵便局などの周辺環境で評価がついています。
- 共用
- ビルの共⽤部(エントランス、外壁などのリニューアル、セキュリー他)共⽤施設の充実度で評価がついています。
- 専有
- 貸室内の設備(天井⾼・OAフロア・個別空調など)で評価がついています。
- BCP対応
- 新耐震基準や地震時強い免震・制震構造・停電時に必要な⾮常⽤電源対応などで評価がついています。
- ステージ君
- オフィステージ コンシェルジュ ステージ君のズバリの評価になります。

SD堺筋本町ビルは、堺筋の一本東側の道に面して建つ10階建てのオフィスビルです。1990年竣工で新耐震基準に適合しており、万が一の地震にも一定の強度を発揮します。大阪メトロ堺筋線「堺筋本町駅」6号出入り口から徒歩1・2分の立地で、周辺には飲食店やコンビニ、食品スーパーなどがあります。また、地下の駅改札口付近にも多数の飲食店があるので、従業員様のランチや懇親会の場所に困る心配はありません。ビルには24時間使用可能な駐車場が設備されており、南向き一方通行の比較的静かな道路に面しているので車の出し入れもスムーズです。ワンフロアは約32坪、個別空調完備でいつでも快適な温度設定が自在です。男女別のウォシュレット付きトイレ完備で女性従業員様が多いテナント様も安心。室内の照明はLED化されています。オフィスビルには珍しく、正面玄関が土日・祝日も開放されているのもおすすめのポイント。様々な業種や働き方の企業様ニーズに対応しています。
- 立地
-




- 共用
-




- 専有
-




- BCP対応
-




- ステージ君
-





非公開とは?
賃料が「非公開」の物件は、オーナー様のご希望で賃料が非公開となっております。
賃料の目安についてはお気軽にお問い合わせください。
- 本町の小型ビルの平均坪単価
- 8,699円






本町EASTは、1990年8月に竣工したオフィスビルです。大阪市中央区久太郎町1-9-5にあり、鉄骨造地上10階建のオフィスビルとなっています。最寄駅である大阪メトロ堺筋線「堺筋本町駅」から徒歩1分の距離に位置しており、通勤や外出の際の利便性に優れています。ビルの外観は、タイル張りとなっているグレーの外壁と、各階で横に広く設計された窓が特徴的です。エレベーターは1基設置。新耐震基準を満たしていることから、地震などの災害時にも一定の安全性が確保されています。光ファイバーは引込済。共用部には男女別のトイレが設けられています。空調は個別空調が導入されており、各オフィスで細かな温度設定が可能です。24時間対応の機械警備によって管理されていることから、セキュリティー面も万全です。