大東ビル
印刷
物件写真
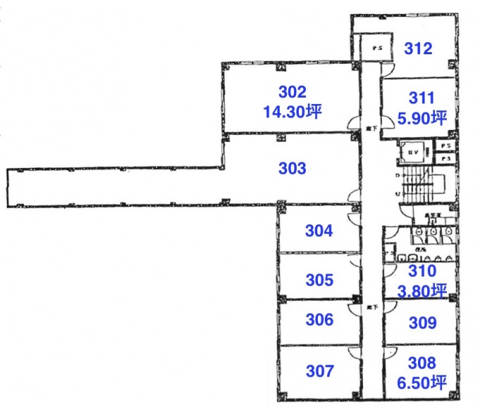
区画図(基準階)
物件概要
| 住所 | 大阪府大阪市中央区南久宝寺町4-4-13 | 総階数 | 8階 |
|---|---|---|---|
| 最寄駅 |
大阪メトロ中央線本町駅 徒歩3分 大阪メトロ御堂筋線本町駅 徒歩5分 大阪メトロ御堂筋線心斎橋駅 徒歩6分 |
延床面積/基準階面積 | - / - |
| 建物構造 | 鉄筋コンクリート造 | ||
| 竣工年月 | 1966年1月 | 備考 | - |
| リニューアル | 1月 トイレリニューアル済、505・605のみ改装済 | ||
基準階面積は共用部面積を含む場合がございます。
物件設備・条件
| エレベーター | あり 総台数 1基 |
トイレ | 男女別 ウォシュレットなし |
|---|---|---|---|
| 空調 | 個別空調 24時間使用可 | 正面玄関 開放時間 |
- |
| 天井高 | - | 駐車場 | 駐車場なし |
| フロア | - | 駐輪場 | 駐輪場なし |
| セキュリティー | 機械警備 | 貸会議室 | - |
| BCP対応 | - | リフレッシュルーム | なし |
| 立地 | 駅3分以内 | 店舗 | - |
| ビル規模 | - | 建物種別 | オフィスビル |

- 総合評価
-




2.5
評価の見方
- 立地
- 駅からビルまでの利便性やコンビニや郵便局などの周辺環境で評価がついています。
- 共用
- ビルの共⽤部(エントランス、外壁などのリニューアル、セキュリー他)共⽤施設の充実度で評価がついています。
- 専有
- 貸室内の設備(天井⾼・OAフロア・個別空調など)で評価がついています。
- BCP対応
- 新耐震基準や地震時強い免震・制震構造・停電時に必要な⾮常⽤電源対応などで評価がついています。
- ステージ君
- オフィステージ コンシェルジュ ステージ君のズバリの評価になります。

大東ビルは1966年竣工のビルです。最寄駅は大阪地下鉄御堂筋線「本町駅」徒歩5分、中央線「本町駅」徒歩3分で、毎朝の通勤も便利で御堂筋から西に入った場所にあるので、静かな周辺環境です。区画は6坪台〜30坪ぐらいの面積が多く、初期費用も少ないので、コスト削減や新規開業で事務所をお探しのお客様にオススメの物件です。また1Fには宅配業者の営業所もあるので、配送の多い業種のお客様にも便利です。
評価詳細を表示
- 立地
-




- 共用
-




- 専有
-




- BCP対応
-




- ステージ君
-





非公開とは?
賃料が「非公開」の物件は、オーナー様のご希望で賃料が非公開となっております。
賃料の目安についてはお気軽にお問い合わせください。
- 本町の平均坪単価
- 8,793円





