心斎橋フロントビル (旧)りそな心斎橋ビル
印刷
物件概要
| 住所 | 大阪府大阪市中央区南船場3-5-11 | 総階数 | 9階/地下1階 |
|---|---|---|---|
| 最寄駅 |
大阪メトロ御堂筋線心斎橋駅 徒歩1分 大阪メトロ長堀鶴見緑地線心斎橋駅 徒歩1分 大阪メトロ長堀鶴見緑地線長堀橋駅 徒歩4分 |
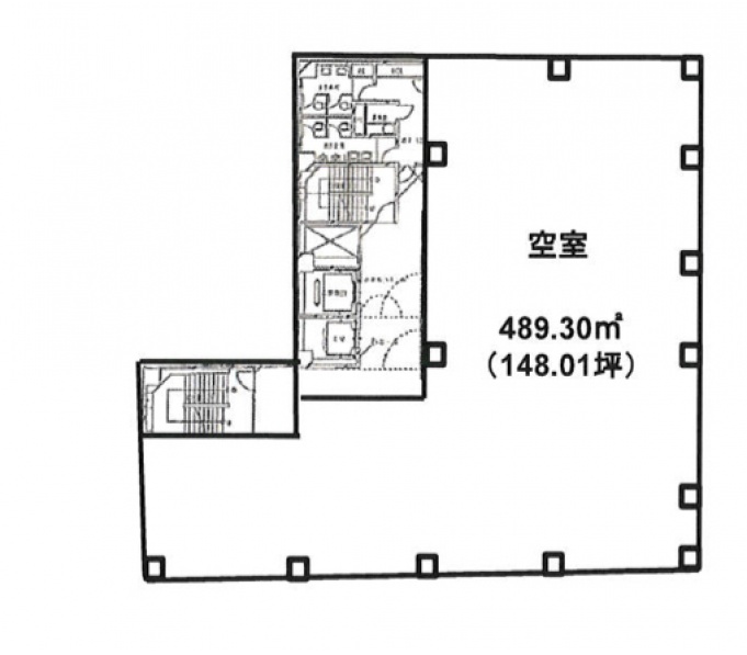
延床面積/基準階面積 | 1980.90坪 / 142.36坪 |
| 建物構造 | 鉄骨鉄筋コンクリート造 | ||
| 竣工年月 | 1986年11月 | 備考 | - |
| リニューアル | 2015年3月 共用部 | ||
基準階面積は共用部面積を含む場合がございます。
物件設備・条件
| エレベーター | あり 総台数 2基 |
トイレ | 男女別 ウォシュレットあり |
|---|---|---|---|
| 空調 | セントラル空調 |
正面玄関 開放時間 |
- |
| 天井高 | 2530mm | 駐車場 | 駐車場あり |
| フロア | OAフロアあり 50mm | 駐輪場 | - |
| セキュリティー | 機械警備 常駐警備 |
貸会議室 | - |
| BCP対応 | 新耐震基準適合 | リフレッシュルーム | なし |
| 立地 | 駅3分以内 大通り沿い |
店舗 | - |
| ビル規模 | 大型ビル (貸床100坪〜200坪) |
建物種別 | オフィスビル |

- 総合評価
-




4
評価の見方
- 立地
- 駅からビルまでの利便性やコンビニや郵便局などの周辺環境で評価がついています。
- 共用
- ビルの共⽤部(エントランス、外壁などのリニューアル、セキュリー他)共⽤施設の充実度で評価がついています。
- 専有
- 貸室内の設備(天井⾼・OAフロア・個別空調など)で評価がついています。
- BCP対応
- 新耐震基準や地震時強い免震・制震構造・停電時に必要な⾮常⽤電源対応などで評価がついています。
- ステージ君
- オフィステージ コンシェルジュ ステージ君のズバリの評価になります。

りそな心斎橋ビルは大阪市中央区南船場3丁目にある大型ビルです。長堀通り沿いにあり、人通りも多いため視認性が非常に良いです。最寄駅は大阪メトロ御堂筋線「心斎橋駅」徒歩1分。クリスタ長堀(地下街)「北8出入口」をでてすぐの立地にあり、雨の日でもほぼ濡れることなく通勤ができます。りそな心斎橋ビルは、1986年竣工のオフィスビルで新耐震基準に適合しており一定の耐震性を備えているので災害時にも安心です。また、平成27年3月に共用部リニューアル工事をしており、とても綺麗になっております。エレベーターは2基あり通勤ラッシュ時や忙しいビジネスワーカーにもストレス少なくご利用いただけます。りそな心斎橋ビルは、タワー式駐車場も完備!車を使用されるテナント様は周辺で探さなくていいので非常に便利です。トイレは男女別の洋式ウォシュレット付き!特に女性の方や来訪者に喜ばれます。セキュリティーは機械警備+常駐警備のダブルセキュリティー。安心して業務に取り組めます。区画内の照明は天井埋込下面開放型(蛍光灯2灯用)で、天井高2530mmのOAフロア50mm。空調はセントラル空調でこちらも天井埋込み型のため、開放感あふれる空間が広がります。周辺にはコンビニ、銀行など必要なものが揃っており帰宅時もクリスタ長堀には様々な店舗があるので買い物や、食事など非常に便利です。認知度も高く、リニューアルによってさらにグレード感もUPした、りそな心斎橋でさらにビジネスの幅を広げてみてはいかがでしょうか。
- 立地
-




- 共用
-




- 専有
-




- BCP対応
-




- ステージ君
-





非公開とは?
賃料が「非公開」の物件は、オーナー様のご希望で賃料が非公開となっております。
賃料の目安についてはお気軽にお問い合わせください。
- 心斎橋・南船場の大型ビルの平均坪単価
- 10,431円





