本町プレタビル
印刷
物件概要
| 住所 | 大阪府大阪市中央区瓦町4-6-15 | 総階数 | 10階 |
|---|---|---|---|
| 最寄駅 |
大阪メトロ御堂筋線本町駅 徒歩3分 大阪メトロ四つ橋線本町駅 徒歩3分 大阪メトロ御堂筋線淀屋橋駅 徒歩6分 |
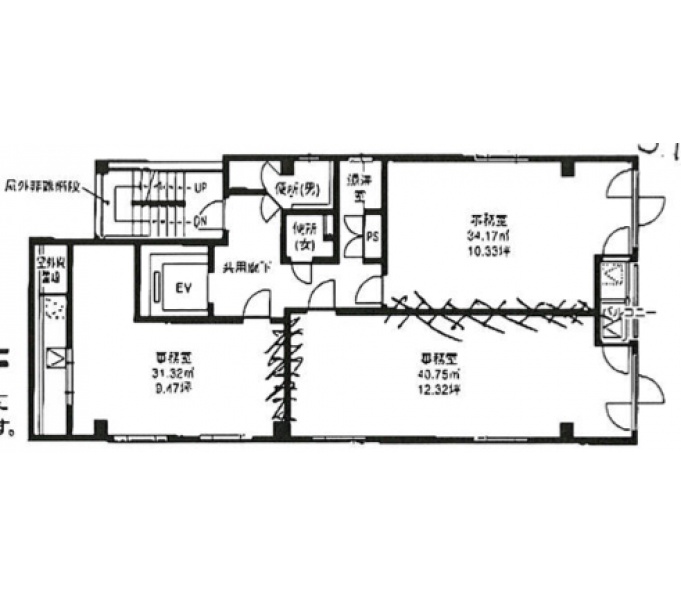
延床面積/基準階面積 | 371.00坪 / 32.12坪 |
| 建物構造 | 鉄骨造 | ||
| 竣工年月 | 2001年1月 | 備考 | - |
| リニューアル | - | ||
基準階面積は共用部面積を含む場合がございます。
物件設備・条件
| エレベーター | あり 総台数 1基 |
トイレ | 男女別 ウォシュレットあり |
|---|---|---|---|
| 空調 | 個別空調 24時間使用可 | 正面玄関 開放時間 |
平 日 7 : 00 〜 20 : 00 土 曜 7 : 00 〜 20 : 00 日・祝 - : - 〜 - : - |
| 天井高 | - | 駐車場 | 駐車場なし |
| フロア | OAフロアあり | 駐輪場 | 駐輪場あり |
| セキュリティー | 機械警備 | 貸会議室 | なし |
| BCP対応 | 新耐震基準適合 | リフレッシュルーム | なし |
| 立地 | 駅3分以内 | 店舗 | - |
| ビル規模 | 小型ビル (貸床〜50坪) |
建物種別 | オフィスビル |

- 総合評価
-




3.5
評価の見方
- 立地
- 駅からビルまでの利便性やコンビニや郵便局などの周辺環境で評価がついています。
- 共用
- ビルの共⽤部(エントランス、外壁などのリニューアル、セキュリー他)共⽤施設の充実度で評価がついています。
- 専有
- 貸室内の設備(天井⾼・OAフロア・個別空調など)で評価がついています。
- BCP対応
- 新耐震基準や地震時強い免震・制震構造・停電時に必要な⾮常⽤電源対応などで評価がついています。
- ステージ君
- オフィステージ コンシェルジュ ステージ君のズバリの評価になります。

本町プレタビルは大阪市中央区瓦町に建つ2001年竣工、新耐震基準のオフィスビルです。ベージュ色の外観と、均等に設置されたガラス窓が特徴的です。エントランスには床・壁面に色調の明るい御影石が採用され、高いデザイン性を有しています。ワンフロアワンテナントの小規模ビルで、同フロアのテナントにも気を遣わず使用可能です。共用部にはしっかり男女別トイレ。ウォシュレットも完備されています。ビル内には機械警備が採用され、セキュリティも十分です。近隣にはファミリーマート等のコンビニエンスストアに加え、飲食店や喫茶店が多く営業されており、ランチや打ち合わせにも便利です。また金融機関も多く点在しており、日々の業務を円滑に進める事が可能です。最寄り駅は大阪メトロ「本町駅」。御堂筋線、四つ橋線、中央線が利用可能なターミナル駅で、通勤先や営業拠点としても便利です。比較的築年数も浅く、本町周辺で物件をお探しの企業様にお勧めです。
- 立地
-




- 共用
-




- 専有
-




- BCP対応
-




- ステージ君
-





非公開とは?
賃料が「非公開」の物件は、オーナー様のご希望で賃料が非公開となっております。
賃料の目安についてはお気軽にお問い合わせください。
- 本町の小型ビルの平均坪単価
- 8,699円





