昭和ビル
印刷
物件写真
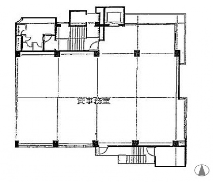
区画図(基準階)
物件概要
| 住所 | 大阪府大阪市西区江戸堀1-18-27 | 総階数 | 9階 |
|---|---|---|---|
| 最寄駅 |
大阪メトロ四つ橋線肥後橋駅 徒歩2分 京阪中之島線渡辺橋駅 徒歩4分 大阪メトロ御堂筋線淀屋橋駅 徒歩6分 |
延床面積/基準階面積 | 857.18坪 / - |
| 建物構造 | 鉄骨造 | ||
| 竣工年月 | 1974年9月 | 備考 | - |
| リニューアル | - | ||
基準階面積は共用部面積を含む場合がございます。
物件設備・条件
| エレベーター | あり 総台数 1基 |
トイレ | - |
|---|---|---|---|
| 空調 | 個別空調 24時間使用可 | 正面玄関 開放時間 |
平 日 7 : 30 〜 18 : 00 土 曜 - : - 〜 - : - 日・祝 - : - 〜 - : - |
| 天井高 | 2450mm | 駐車場 | 駐車場あり |
| フロア | - | 駐輪場 | - |
| セキュリティー | 機械警備 | 貸会議室 | - |
| BCP対応 | - | リフレッシュルーム | なし |
| 立地 | 駅3分以内 大通り沿い |
店舗 | - |
| ビル規模 | - | 建物種別 | オフィスビル |

- 総合評価
-




2.5
評価の見方
- 立地
- 駅からビルまでの利便性やコンビニや郵便局などの周辺環境で評価がついています。
- 共用
- ビルの共⽤部(エントランス、外壁などのリニューアル、セキュリー他)共⽤施設の充実度で評価がついています。
- 専有
- 貸室内の設備(天井⾼・OAフロア・個別空調など)で評価がついています。
- BCP対応
- 新耐震基準や地震時強い免震・制震構造・停電時に必要な⾮常⽤電源対応などで評価がついています。
- ステージ君
- オフィステージ コンシェルジュ ステージ君のズバリの評価になります。

「総合評価」は「立地」「共有」「専有」「BCP対応」「ステージ君」の評価の総合評価になります。
内容の詳細は「評価詳細を表示」からご確認ください。
また、「評価の見方」から各個別評価の概要を見ることができます。
評価詳細を表示
- 立地
-




- 共用
-




- 専有
-




- BCP対応
-




- ステージ君
-





非公開とは?
賃料が「非公開」の物件は、オーナー様のご希望で賃料が非公開となっております。
賃料の目安についてはお気軽にお問い合わせください。
- 肥後橋の平均坪単価
- 9,770円






