JIN・ORIXビルディング

印刷
  • JIN・ORIXビルディング
  • 正面玄関
  • エントランス
  • EVホール(1階)
  • EVホール(基準階)
  • 廊下
  • トイレ1
  • トイレ2
  • 給湯室
  • 室内(空間1)
  • 室内(空間2)
  • 室内(空間3)
  • 室内(その他1)
  • 室内(その他2)
  • 室内エアコン(本体)
  • 室内エアコン(コントローラー)
  • 駐車場入口
  • 前面道路1
  • 外観2
  • その他ビル
  • 区画図
物件写真
  • JIN・ORIXビルディング
  • 正面玄関
  • エントランス
  • EVホール(1階)
  • EVホール(基準階)
  • 廊下
  • トイレ1
  • トイレ2
  • 給湯室
  • 室内(空間1)
  • 室内(空間2)
  • 室内(空間3)
  • 室内(その他1)
  • 室内(その他2)
  • 室内エアコン(本体)
  • 室内エアコン(コントローラー)
  • 駐車場入口
  • 前面道路1
  • 外観2
  • その他ビル
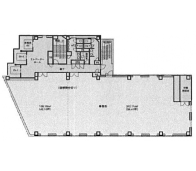
区画図(基準階)
  • 区画図

物件概要

住所 大阪府大阪市北区西天満1-7-20 総階数 13階/地下1階
最寄駅 京阪本線北浜駅 徒歩3分
京阪中之島線なにわ橋駅 徒歩2分
大阪メトロ谷町線南森町駅 徒歩5分
延床面積/基準階面積 2734.00坪 / 137.00坪
建物構造 鉄骨造
竣工年月 1992年7月 備考 -
リニューアル -

基準階面積は共用部面積を含む場合がございます。

物件設備・条件

エレベーター あり
総台数 3基
トイレ 男女別
ウォシュレットあり
空調 個別空調 24時間使用可 正面玄関
開放時間
平 日 8 : 00 〜 19 : 30
土 曜 - : - 〜 - : -
日・祝 - : - 〜 - : -
天井高 - 駐車場 駐車場あり
フロア OAフロアあり  駐輪場 駐輪場あり
セキュリティー 機械警備 貸会議室 -
BCP対応 新耐震基準適合 リフレッシュルーム なし
立地 駅3分以内
大通り沿い
店舗 -
ビル規模 大型ビル
(貸床100坪〜200坪)
建物種別 オフィスビル
総合評価
4

評価の見方

立地
駅からビルまでの利便性やコンビニや郵便局などの周辺環境で評価がついています。
共用
ビルの共⽤部(エントランス、外壁などのリニューアル、セキュリー他)共⽤施設の充実度で評価がついています。
専有
貸室内の設備(天井⾼・OAフロア・個別空調など)で評価がついています。
BCP対応
新耐震基準や地震時強い免震・制震構造・停電時に必要な⾮常⽤電源対応などで評価がついています。
ステージ君
オフィステージ コンシェルジュ ステージ君のズバリの評価になります。

JIN・ORIXビルディングは、少し特殊な外観が目を引くオフィスビルです。ビルの2面に渡って白い外壁が階段のような形に配置されていて、それ以外の外壁はガラス張りになっています。堺筋に面しているのも相まって、とても見つけやすいビルです。エントランスの内装は清潔感があり、柔らかい色の照明が落ち着いた空間を演出しています。1992年に建てられたビルなので、地震に強いのもポイント!歩いて4分ほどの距離に「北浜駅」や「南森町駅」など3路線の駅があるため、毎日の通勤や各方面への移動にもとっても便利!エレベーターも3つあるので、朝の通勤ラッシュでも焦らず出社できます。各部屋の床はOAフロアに対応しているので、邪魔になりがちな配線の問題を解決!煩わしさのない快適なオフィスレイアウトが実現できます!

評価詳細を表示
立地
共用
専有
BCP対応
ステージ君

JIN・ORIXビルディングは、1992年7月に竣工したオフィスビルです。大阪市北区西天満1-7-20にある鉄骨鉄筋コンクリート造地上13階、地下1階建のオフィスビルです。ビルは京阪本線・大阪メトロ堺筋線「北浜駅」から徒歩3分、大阪メトロ谷町線「南森町駅」から徒歩4分の距離にあり、3路線からアクセスできるため交通の利便性に優れています。ビル内には15人乗りのエレベーターが2基、17人乗りのエレベーターが1基完備されており、忙しい朝の通勤ラッシュ時でもスムーズに利用することができます。新耐震基準を満たしているため、災害時にも一定の安全性を確保しています。堺筋に面していることから日当たり良好で、13階からは中之島方面の眺望をのぞむことができます。OAフロア対応で、煩わしい電話線やLANケーブルなどを床下に収納することができます。正面玄関の開放時間は平日8時~21時で、時間外はセキュリティーカードにより入退館可能です。

非公開とは?

賃料が「非公開」の物件は、オーナー様のご希望で賃料が非公開となっております。
賃料の目安についてはお気軽にお問い合わせください。

西天満の大型ビルの平均坪単価
12,439円

おすすめ物件

面積が近い エリアが同じ 最寄駅が同じ ビルの規模が近い