F+BASE brunoビル
印刷
物件写真
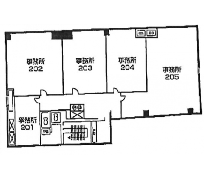
区画図(基準階)
物件概要
| 住所 | 大阪府大阪市北区西天満3-6-35 | 総階数 | 8階/地下1階 |
|---|---|---|---|
| 最寄駅 |
大阪メトロ谷町線南森町駅 徒歩3分 JR東西線大阪天満宮駅 徒歩5分 大阪メトロ谷町線東梅田駅 徒歩9分 |
延床面積/基準階面積 | 599.75坪 / 65.00坪 |
| 建物構造 | 鉄筋コンクリート造 | ||
| 竣工年月 | 1970年9月 | 備考 | - |
| リニューアル | 2005年6月 リニューアル | ||
基準階面積は共用部面積を含む場合がございます。
物件設備・条件
| エレベーター | あり 総台数 1基 |
トイレ | 混合 ウォシュレットなし |
|---|---|---|---|
| 空調 | 個別空調 24時間使用可 | 正面玄関 開放時間 |
- |
| 天井高 | - | 駐車場 | 駐車場なし |
| フロア | OAフロアなし | 駐輪場 | - |
| セキュリティー | 機械警備 | 貸会議室 | - |
| BCP対応 | - | リフレッシュルーム | なし |
| 立地 | 駅3分以内 | 店舗 | - |
| ビル規模 | 中型ビル (貸床50坪〜100坪) |
建物種別 | オフィスビル |

- 総合評価
-




2.5
評価の見方
- 立地
- 駅からビルまでの利便性やコンビニや郵便局などの周辺環境で評価がついています。
- 共用
- ビルの共⽤部(エントランス、外壁などのリニューアル、セキュリー他)共⽤施設の充実度で評価がついています。
- 専有
- 貸室内の設備(天井⾼・OAフロア・個別空調など)で評価がついています。
- BCP対応
- 新耐震基準や地震時強い免震・制震構造・停電時に必要な⾮常⽤電源対応などで評価がついています。
- ステージ君
- オフィステージ コンシェルジュ ステージ君のズバリの評価になります。

F+BASE brunoビルは、京阪国道から少し離れたところにあるオフィスビルです。騒音が少ないため、静かな環境でお客様とゆっくりお話をしたい企業様にぴったりです。「南森町駅」から歩いて3分のところにあるから、通勤や外出にとっても便利!エントランスはモノトーンを中心とした内装となっており、シャープで落ち着いた印象の空間となっています。オフィスの床はタイルカーペットが敷かれており、他テナントへも足音が響きにくいため快適に過ごすことができます。生活音を気にすることなく、集中して仕事に取り組むことができる点が魅力となっています。インターネット回線は光ファイバーで、高速通信もラクラク!セキュリティー対策もバッチリだから、退社後のオフィスをしっかり守ってくれます。
評価詳細を表示
- 立地
-




- 共用
-




- 専有
-




- BCP対応
-




- ステージ君
-





非公開とは?
賃料が「非公開」の物件は、オーナー様のご希望で賃料が非公開となっております。
賃料の目安についてはお気軽にお問い合わせください。
- 西天満の中型ビルの平均坪単価
- 9,274円






F+BASE brunoビルは、1970年9月に竣工したオフィスビルです。大阪市北区西天満3-6-35にあり、鉄筋コンクリート造地上8階、地下1階建のオフィスビルとなっています。最寄駅である大阪メトロ堺筋線・谷町線「南森町駅」からは徒歩3分。堺筋線・京阪本線「北浜駅」、JR東西線「大阪天満橋駅」など合わせて3路線以上からもアクセス可能であるため、通勤や外出時の利便性に優れています。光ファイバーが引込済で、床面はタイルカーペット仕様となっています。共用部には、男女別トイレが設けられています。空調は24時間使用できる個別空調が導入されているため、オフィス毎に細かな温度設定が可能です。ビル内は24時間対応の機械警備によって管理されており、セキュリティー面も万全です。