又一ビルディング
印刷
物件概要
| 住所 | 大阪府大阪市中央区久太郎町3-5-13 | 総階数 | 11階/地下2階 |
|---|---|---|---|
| 最寄駅 |
大阪メトロ御堂筋線本町駅 徒歩3分 大阪メトロ中央線本町駅 徒歩2分 大阪メトロ堺筋線堺筋本町駅 徒歩5分 |
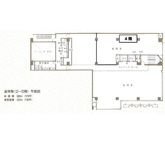
延床面積/基準階面積 | 2090.64坪 / 150.00坪 |
| 建物構造 | 鉄骨鉄筋コンクリート造 | ||
| 竣工年月 | 1985年4月 | 備考 | - |
| リニューアル | - | ||
基準階面積は共用部面積を含む場合がございます。
物件設備・条件
| エレベーター | あり 総台数 2基 |
トイレ | 男女別 ウォシュレットあり |
|---|---|---|---|
| 空調 | 個別空調 24時間使用可 | 正面玄関 開放時間 |
平 日 7 : 30 〜 19 : 00 土 曜 7 : 30 〜 18 : 00 日・祝 - : - 〜 - : - |
| 天井高 | 2450mm | 駐車場 | 駐車場あり 総台数 28台 |
| フロア | OAフロアあり 50mm | 駐輪場 | 駐輪場なし |
| セキュリティー | 機械警備 常駐警備 |
貸会議室 | なし |
| BCP対応 | 新耐震基準適合 | リフレッシュルーム | なし |
| 立地 | 駅3分以内 大通り沿い |
店舗 | - |
| ビル規模 | 大型ビル (貸床100坪〜200坪) |
建物種別 | オフィスビル |

- 総合評価
-




4
評価の見方
- 立地
- 駅からビルまでの利便性やコンビニや郵便局などの周辺環境で評価がついています。
- 共用
- ビルの共⽤部(エントランス、外壁などのリニューアル、セキュリー他)共⽤施設の充実度で評価がついています。
- 専有
- 貸室内の設備(天井⾼・OAフロア・個別空調など)で評価がついています。
- BCP対応
- 新耐震基準や地震時強い免震・制震構造・停電時に必要な⾮常⽤電源対応などで評価がついています。
- ステージ君
- オフィステージ コンシェルジュ ステージ君のズバリの評価になります。

大阪におけるビジネスの中心地の一つである本町エリア。又一ビルディングはその本町エリアの中でも特に大型のビルが立ち並ぶ御堂筋沿い、久太郎町3丁目に建つ1985年竣工、地上11階地下2階建のオフィスビルです。大阪メトロ 中央線「本町駅」12号出入口から徒歩2分、御堂筋線「本町駅」からも徒歩3分の好立地です。基準階はワンフロア約130坪〜約150坪で窓が多く採光良好、高さ50mmのOAフロア敷設済み、空調は個別空調方式です。窓からは御堂筋が一望でき、春・夏には街路樹の緑を、秋には紅葉を、冬にはイルミネーションを楽しむことができます。電車の利便性の高さはもちろんのこと、ビル内にタワー式駐車場が完備され、駐車場出入口から御堂筋へは信号なしで出られる上に阪神高速の乗口も近く、車での営業活動もスムーズに行えます。銀行やコンビニも近く、地下に入れば飲食店が多数あるのでランチや終業後の息抜きの場所に困ることもありません。1985年4月に又一ビルディングとして建て替えられる以前、ここには「大谷仏教会館」が建っていました。1933年に「南御堂難波別院」によって建てられたこのビルは、異国情緒の感じられる美しい文様が彫刻された外壁を持っており、建て替えの際、その一部が又一ビルディングのファサードに取り込まれる形で残されました。そのため又一ビルディングは近代的なガラス張りの中に古き良き大阪の面影を色濃く残す、数あるオフィスビルの中でも他に類を見ない外観を誇るオフィスビルとなりました。近代的な大型ビルと古くからの寺社が共存する御堂筋界隈のシンボルとして優れていること、また大阪文化の保存に貢献したとして評価され、1986年に“第6回大阪都市景観建築賞 奨励賞(愛称:大阪まちなみ賞)”を受賞しました。このような歴史を持つ又一ビルディングは、近代建築の利便性とレトロ建築の風格を併せ持った魅力的なオフィスビルです。
- 立地
-




- 共用
-




- 専有
-




- BCP対応
-




- ステージ君
-





非公開とは?
賃料が「非公開」の物件は、オーナー様のご希望で賃料が非公開となっております。
賃料の目安についてはお気軽にお問い合わせください。
- 本町の大型ビルの平均坪単価
- 9,684円





